Elevations

Rear & Side Extension with Porch, Birmingham

Subtitle

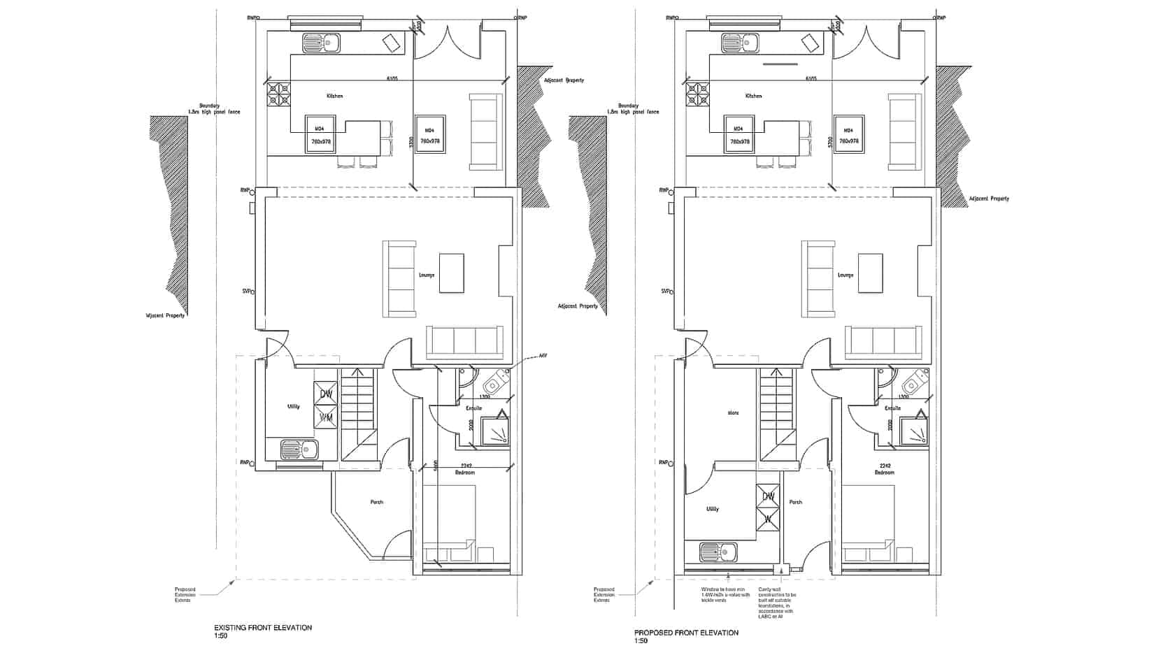
Side Extension with Porch, Acocks Green, Birmingham.

Our client wanted a contemporary solution for their living space to the rear of the property. In addition to this, they asked for a new porch to modernise their previously out-dated frontage. We designed the front of the home in-keeping with the existing vernacular, revamping some areas with pristine White render. In response to the brief, we also designed the client a modern, light and airy open-plan kitchen and living space. We also created additional utility space at the side of the property (towards the front of the house) resulting in comfortable living arrangements throughout and a very happy client.

SHARE PROJECT