We design house extensions, renovations and new builds. From first chat to builders on site - we handle everything so you don't have to.
Our Process
Six clear steps - no jargon, no surprises.
Tell us about your project. We'll explain your options, costs and timelines. No jargon, no pressure.
We visit your home and measure everything. You'll get accurate drawings of your property as it stands today.
Work 1-to-1 with your architect to design your project together. See ideas take shape in real-time.
First draft in 2-3 weeks. Want changes? No problem - up to 3 revisions included free.
We submit everything and handle the back-and-forth until you get your decision. Building regs too if needed.
We'll connect you with trusted builders who can quote your project. Then watch your vision become reality.
We work with clients across the UK - in person or remotely
1. Site Survey
2. CAD Drawings
3. Construction
4. Final ResultTap any card to learn more about costs, timelines and what’s involved.










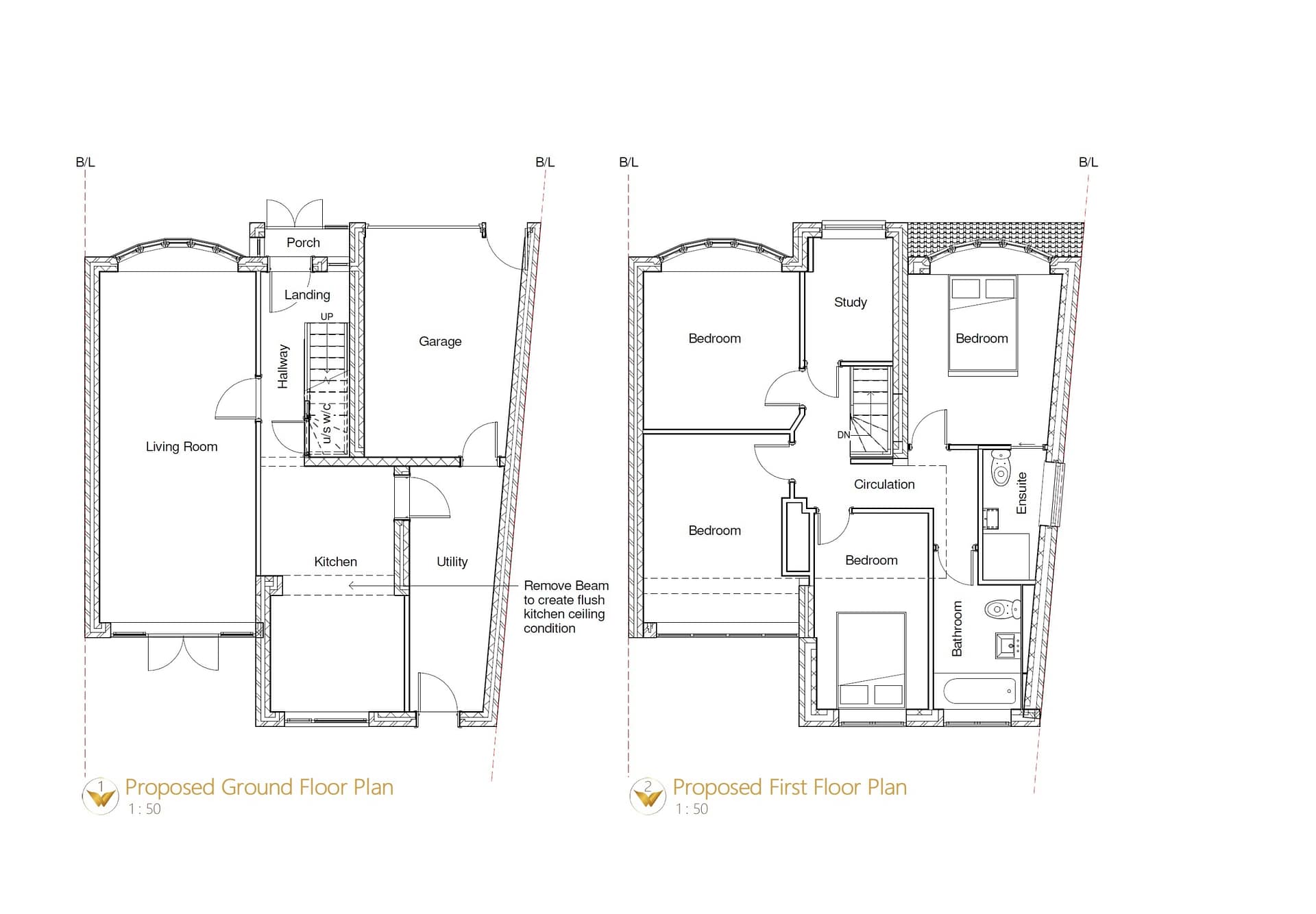
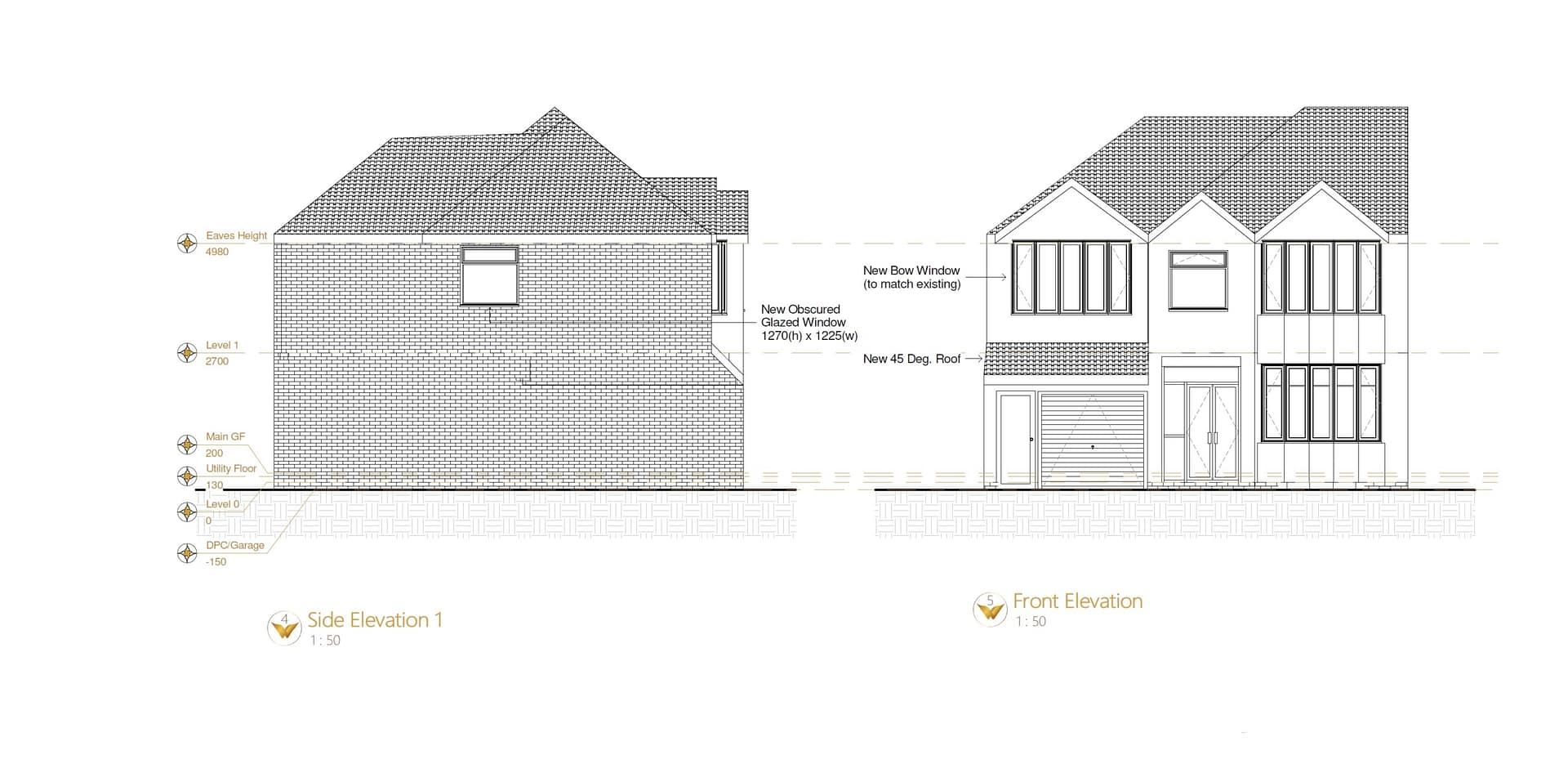
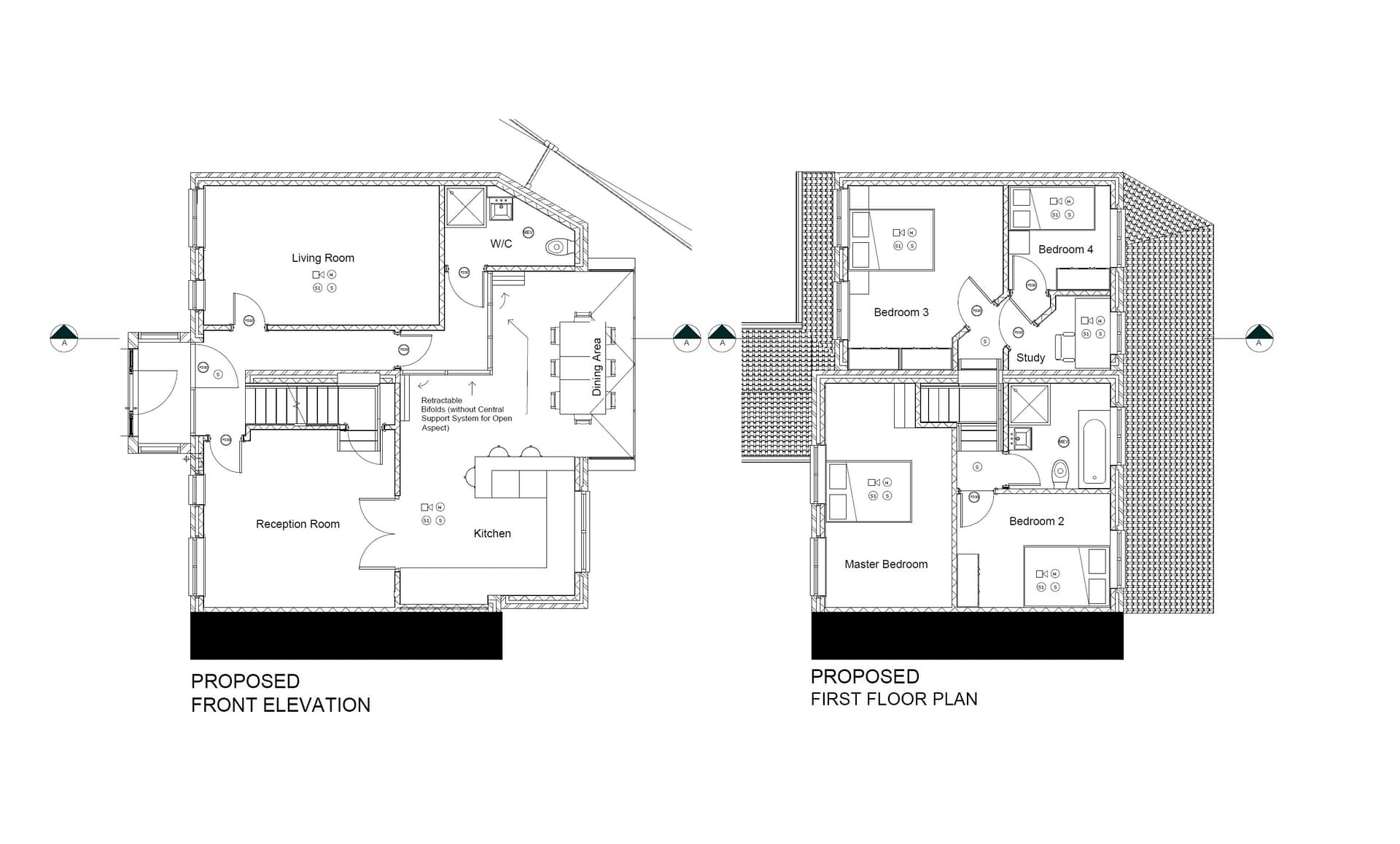
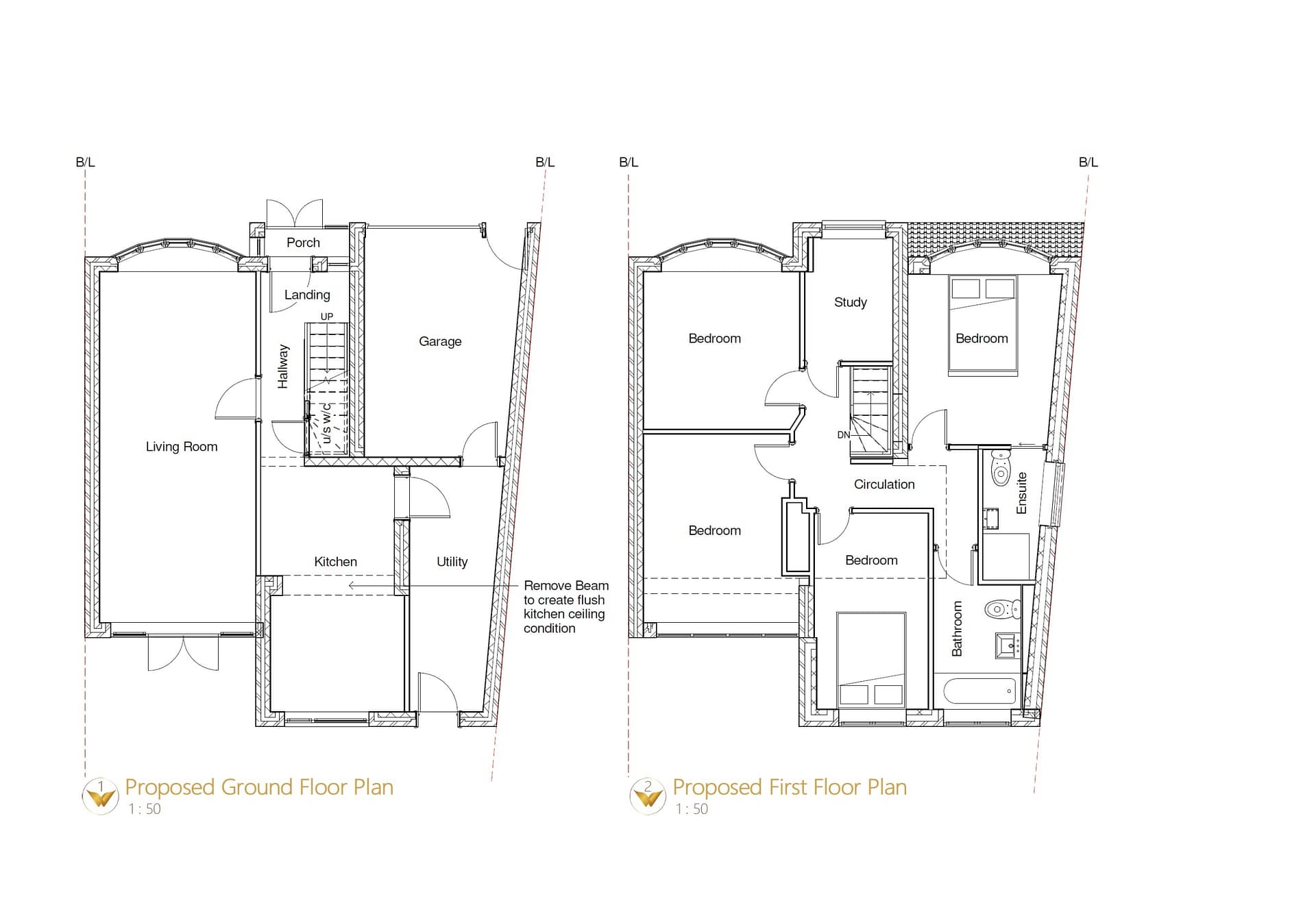
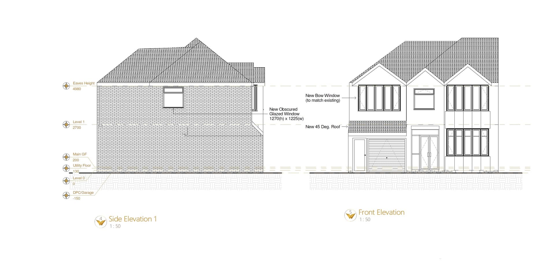
Meticulous documentation that navigates complex approval processes. Our drawings combine technical excellence with strategic thinking to maximise your chances of success.










Breathtaking renders that bring your vision to life before construction begins. See every detail of light, material and atmosphere in stunning detail.










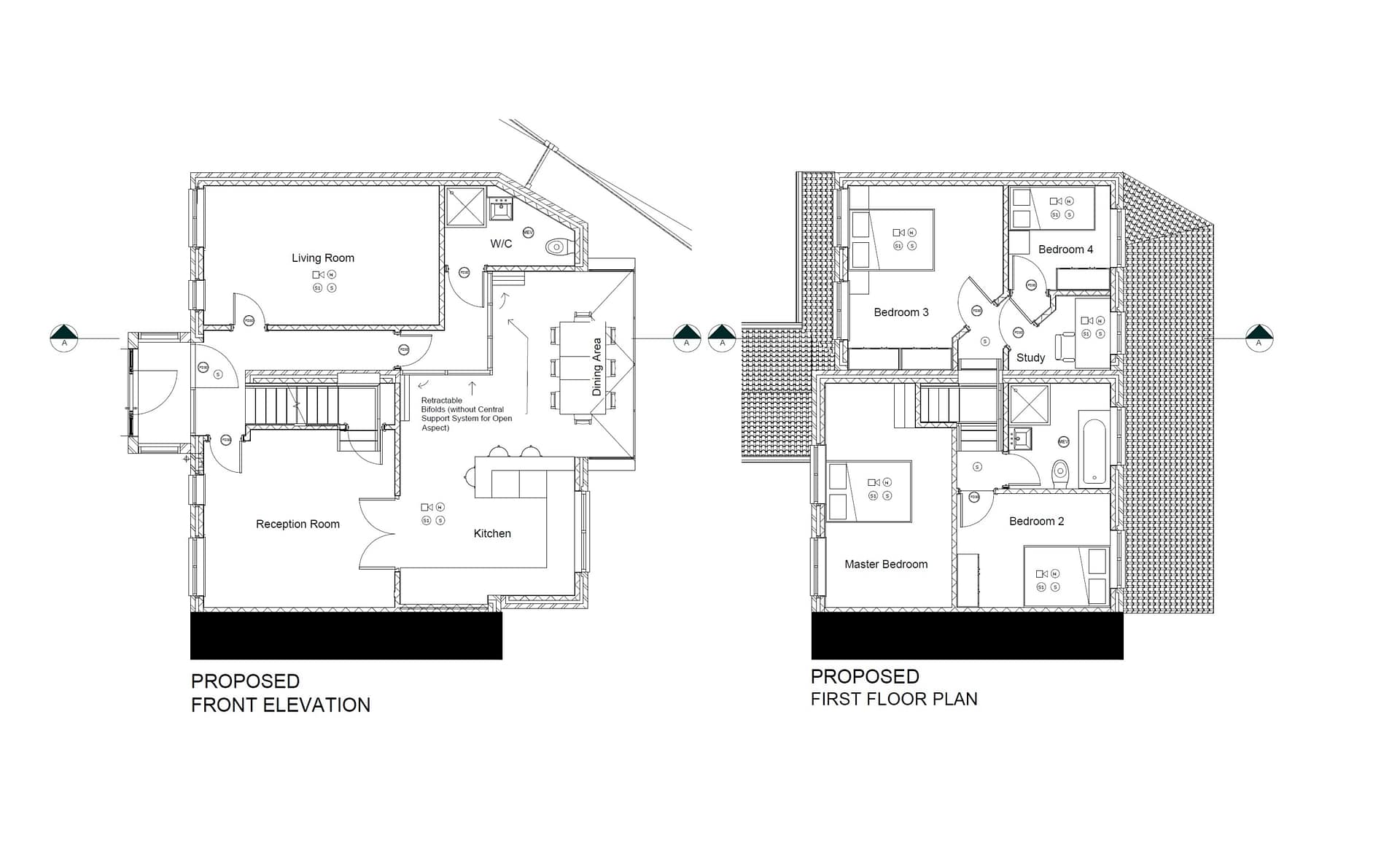
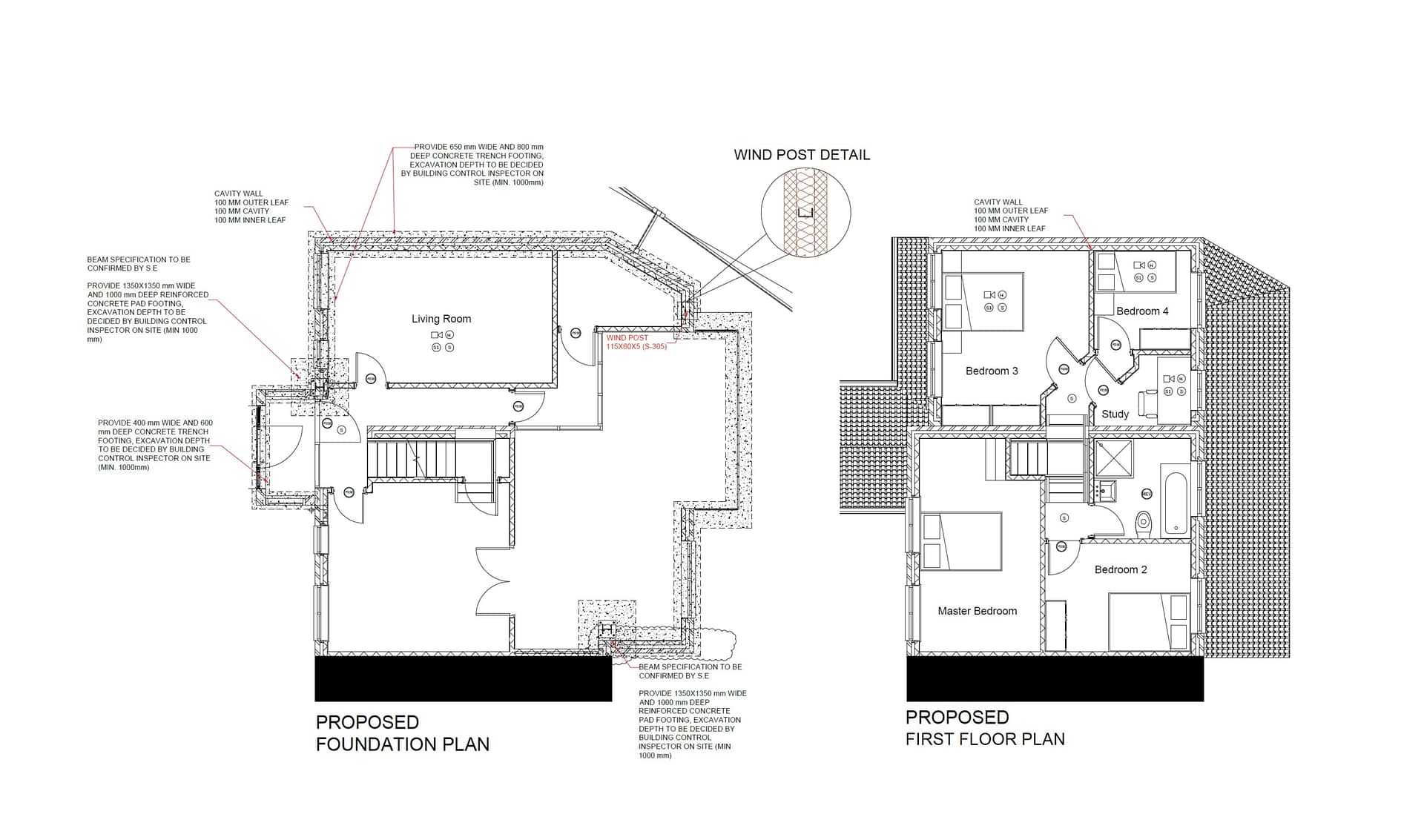
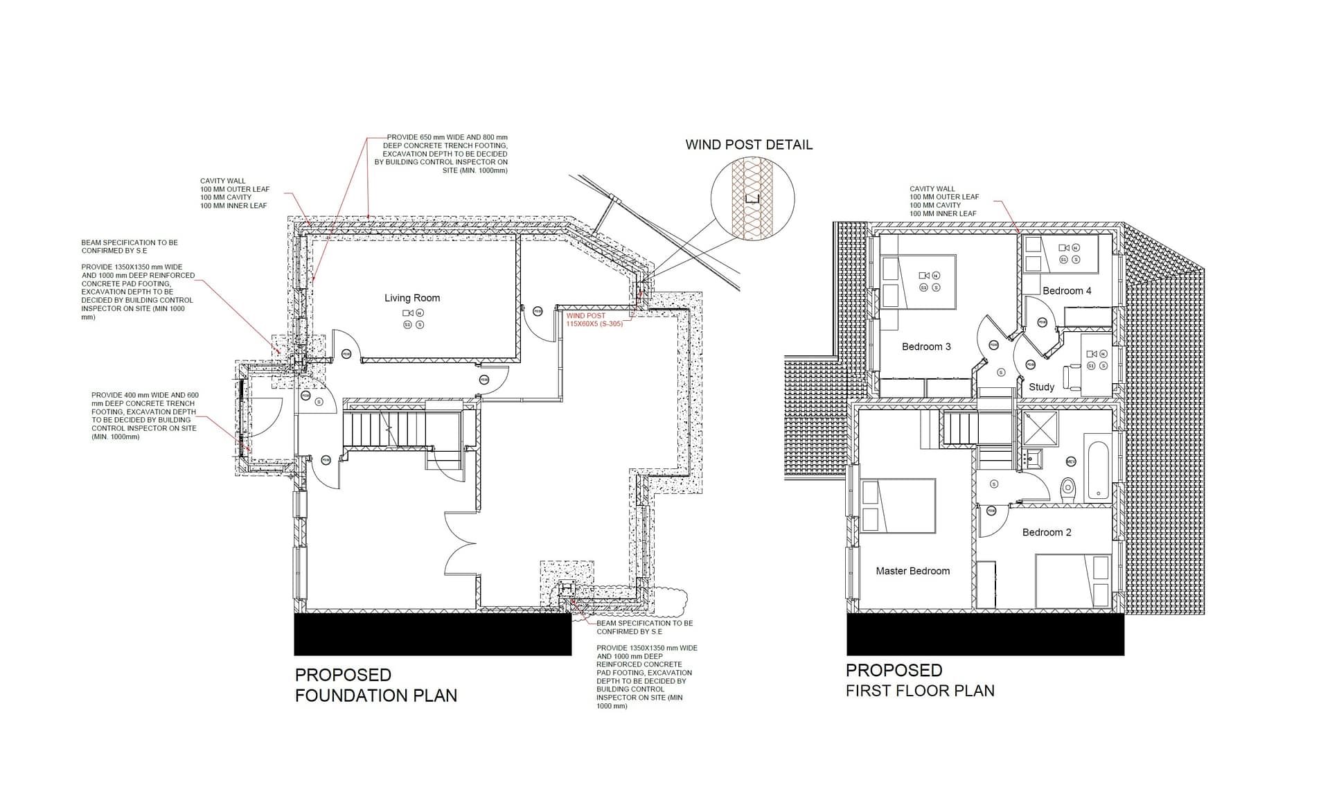
Comprehensive technical documentation ensuring your project meets all statutory requirements. Structural, fire safety, accessibility and energy performance - covered.










Intelligent digital models that coordinate every aspect of your project. Clash detection, accurate quantities and seamless collaboration from concept to completion.
Bite-sized guides covering everything from planning permission to interior design. Expert knowledge distilled into easy-to-follow resources.
Browse guides FreeSee exactly what professional architectural drawings look like. Planning applications, building regs and construction details - all in one place.
View examples FreeStep inside our designs. Walk or fly through selected projects in stunning 3D and experience spaces before they're built.
Explore in 3D PremiumGet a ballpark figure for your project in minutes. Select your options and budget your way smoothly from concept to completion.
Calculate costs...because it's Architecture, made simple.
No confusing jargon. No endless delays. Just a clear process that is designed to get you from idea to approved plans, with an architect who actually listens. We work around your schedule, whether that's evenings, weekends or video calls from your sofa.
Royal Institute of British Architects
Architects Registration Board
Full digital delivery capability
Book a free 15-minute call. We'll chat about your project and explain exactly how we can help.
Book Free CallWe design house extensions, renovations and new builds. From first chat to builders on site - we handle everything so you don't have to.
Our Process
Six clear steps - no jargon, no surprises.
Tell us about your project. We'll explain your options, costs and timelines. No jargon, no pressure.
We visit your home and measure everything. You'll get accurate drawings of your property as it stands today.
Work 1-to-1 with your architect to design your project together. See ideas take shape in real-time.
First draft in 2-3 weeks. Want changes? No problem - up to 3 revisions included free.
We submit everything and handle the back-and-forth until you get your decision. Building regs too if needed.
We'll connect you with trusted builders who can quote your project. Then watch your vision become reality.
We work with clients across the UK - in person or remotely
1. Site Survey
2. CAD Drawings
3. Construction
4. Final ResultTap any card to learn more about costs, timelines and what’s involved.










Meticulous documentation that navigates complex approval processes. Our drawings combine technical excellence with strategic thinking to maximise your chances of success.










Breathtaking renders that bring your vision to life before construction begins. See every detail of light, material and atmosphere in stunning detail.










Comprehensive technical documentation ensuring your project meets all statutory requirements. Structural, fire safety, accessibility and energy performance - covered.










Intelligent digital models that coordinate every aspect of your project. Clash detection, accurate quantities and seamless collaboration from concept to completion.
Bite-sized guides covering everything from planning permission to interior design. Expert knowledge distilled into easy-to-follow resources.
Browse guides FreeSee exactly what professional architectural drawings look like. Planning applications, building regs and construction details - all in one place.
View examples FreeStep inside our designs. Walk or fly through selected projects in stunning 3D and experience spaces before they're built.
Explore in 3D PremiumGet a ballpark figure for your project in minutes. Select your options and budget your way smoothly from concept to completion.
Calculate costs...because it's Architecture, made simple.
No confusing jargon. No endless delays. Just a clear process that is designed to get you from idea to approved plans, with an architect who actually listens. We work around your schedule, whether that's evenings, weekends or video calls from your sofa.
Royal Institute of British Architects
Architects Registration Board
Full digital delivery capability
Book a free 15-minute call. We'll chat about your project and explain exactly how we can help.
Book Free Call